
Kylätimpuri-talo 116 on näyttävä, tehokkaiden neliöiden ja järkevien säilytysratkaisujen kaksitasoinen koti.
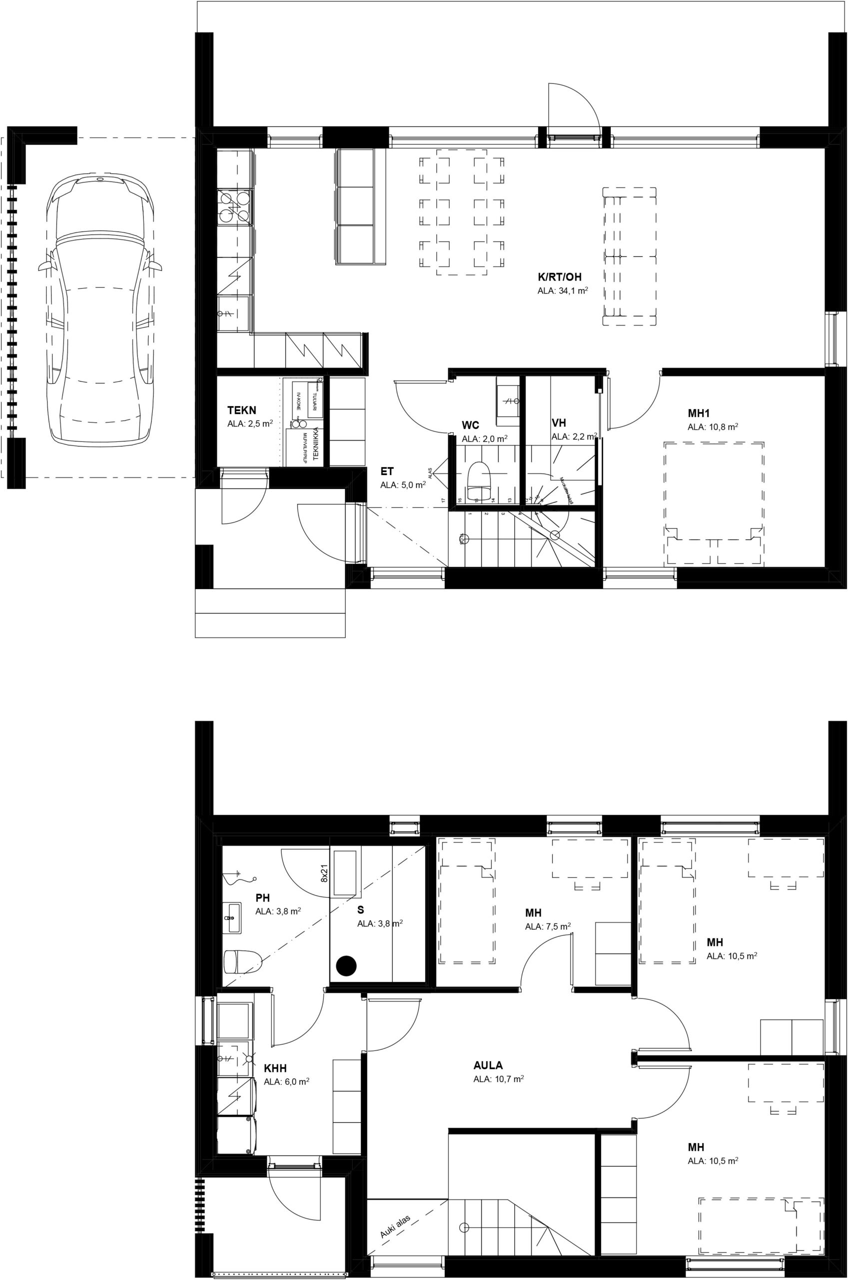
Tässä kodissa alakerrassa keskitytään viettämään yhteistä aikaa tilavassa olohuoneessa, josta on kulku terassille. L-mallinen keittiö sisältää runsaasti säilytystilaa ja niemeke jakaa keittiön omaksi kokonaisuudekseen. Alakertaan on sijoitettu käytännöllisyys huomioiden yksi vaatehuoneellinen makuuhuone.



Kodin loput kolme makuuhuonetta löytyvät yläkerrasta. 10 m2 aulatila toimii hyvin esim. tv-huoneena. Yläkerrasta löytyvät myös tämän kodin kylpy- ja saunatilat sekä kodinhoitohuone. Pieni parveke kodinhoitohuoneen yhteydessä mahdollistaa vilvoittelun saunasta ja esim. vaatteiden tuuletuksen. Autokatos on kytketty taloon ja sitä koristaa kaunis rimaseinä.
