
Kylätimpuri-talo 122 on visuaalisesti näyttävä ja toimivaan arkeen luotu koti.
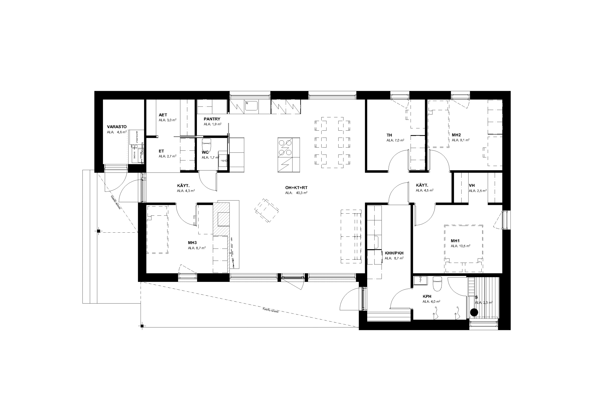
Kodin keskiosaan sijoitettu olohuone-keittiö on avaraa, yhtenäistä tilaa, johon luonnonvaloa pääsee sisään läpi talon. Upeana katseenvangitsijana toimii tiiliverhoiltu tulisija, joka luo olohuoneeseen täysin omanlaisensa tunnelman. Keittiössä sen sijaan arjen sujuvuutta lisää ruokakomero, joka kätkeytyy liukuoven taakse. Ruokakomero helpottaa esimerkiksi säilytystä ja kierrätystä pitämällä keittiön yleisilmeen siistinä ja minimalistisena.



Kodissa on kolme makuuhuonetta sekä työhuone. Päämakuuhuoneen yhteydessä on vaatehuone. Lapsiperheiden suosikki, arkieteinen, löytyy myös tästä kodista eteisen päädystä. Kodinhoitohuoneesta on kulku kylpyhuoneeseen ja saunaan. Sekä olohuoneesta että kodinhoitohuoneesta on uloskäynti katetulle ja suojaisalle terassille.
