
Talon julkisivukuva.
Tervetuloa talonäytölle!
Esittelemme torstaina 20.11. klo 17–19 tämän kaksitasoisen kodin Jyväskylässä.
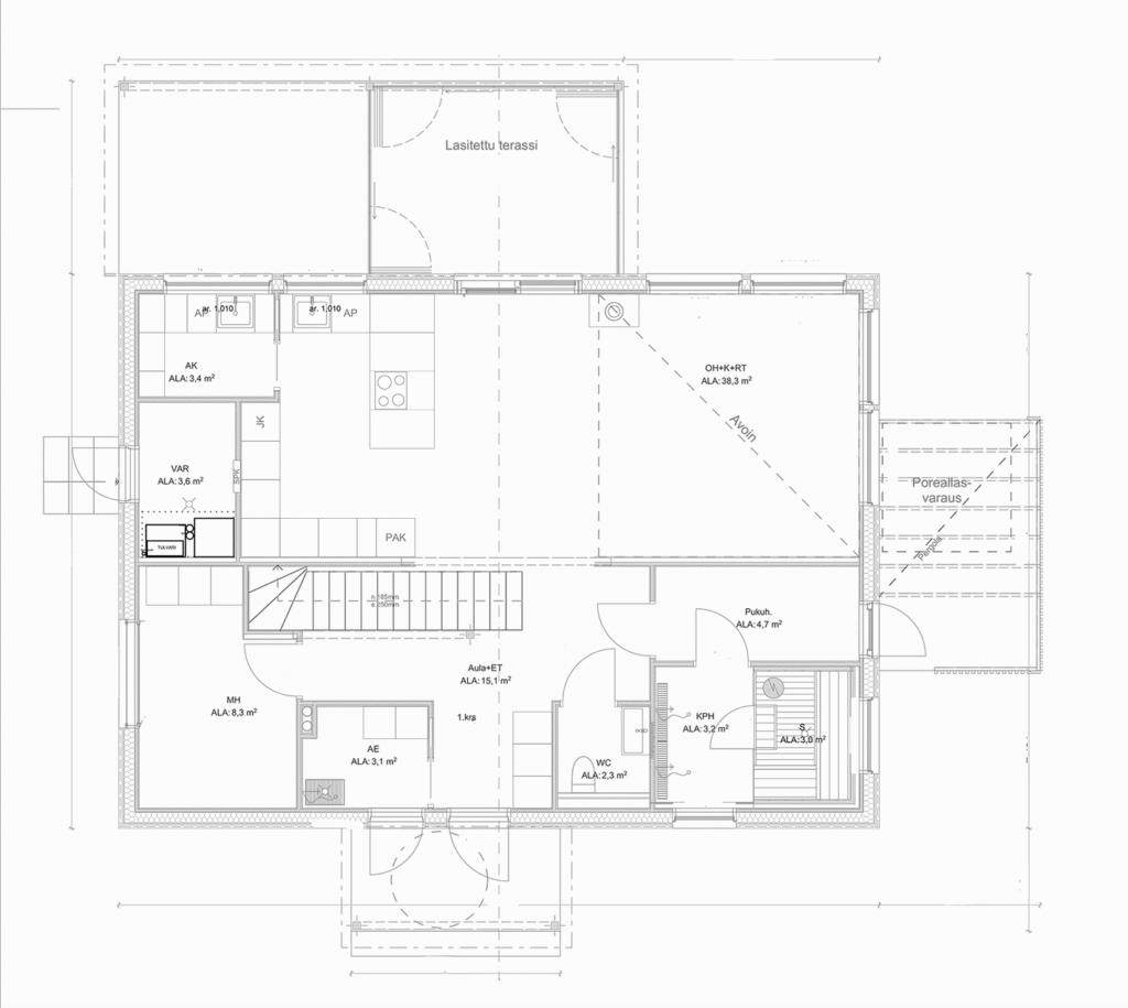
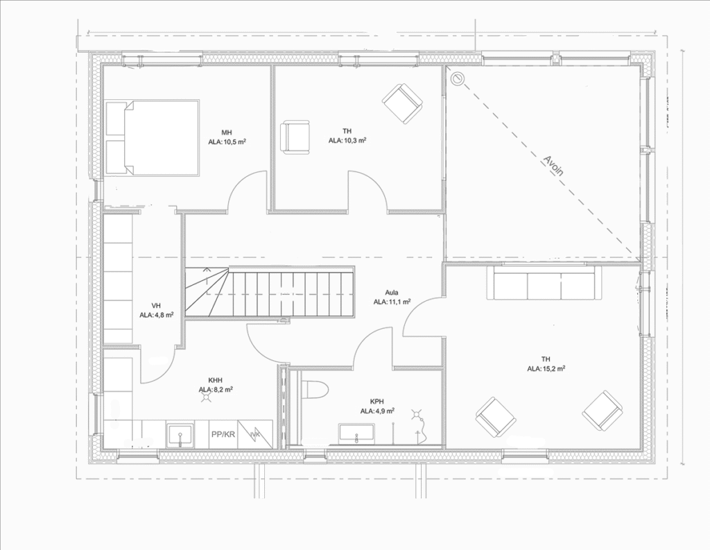
145 m² kodissa on kaksi makuuhuonetta ja kaksi työhuonetta. Yläkerran päämakuuhuoneesta on käynti suuren, 5 m² vaatehuoneen kautta kodinhoitohuoneeseen, mikä lisää kodin käytännöllisyyttä.
Alakerran tilat on suunniteltu täydellisiksi yhdessäoloa varten. Keittiön niemeke mahdollistaa seurustelun kokkaillessa. Lähes 40 m² valoisa yhtenäinen ruokailutila ja olohuone saa avaruutensa niin korkeasta huonekorkeudesta kuin suurista ikkunoista lännen suuntaan.
Talossa on arkieteinen omalla sisäänkäynnillä. Arkieteisen käytännöllisyyttä lisää kurakaukalo. Kodin käytännöllisyyttä lisää myös liukuoven taakse sijoitettu apukeittiö.
Takapihaa koristaa suuri lasitettu terassi. Pihalle on jätetty tilaa myös katetulle paljulle tai porealtaalle. Talosta löytyy myös varasto ja erillinen kahden auton autokatos.
Tämän kodin parhaat:
- Korkea huonekorkeus
- Apukeittiö omalla vesipisteellä
- Lasitettu terassi, josta näkymät etelän suuntaan
- Käytännölliset arjen ratkaisut, kuten oma sisäänkäynti arkieteiseen
- Spa-osasto omalla pukeutumistilalla
Tule tutustumaan tähän toimivaan kotiin ja poimimaan ideoita omaasi!
Osoite: Sammalmäentie 57, 40640 Jyväskylä



Paikalla näyttelyssä talomyyjä
Piia Remes
050 505 7789
piia.remes@kylatimpuri.fi
Tule tutustumaan työn jälkeemme
ja poimimaan parhaat ideat talteen omaa rakennusprojektia varten!